Project management
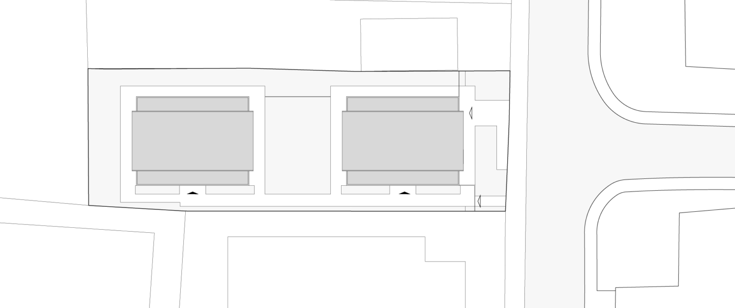
The project aimed to bring into question the issue of living in small collective formulas, with few families, in the urban villa. Meteor Street, from which the name of the project was inspired, is a mixture of collective housing and single-family housing from different time periods, older and contemporary. The two identical buildings are disposed of consecutively in the plot.
Having a common basis, they make the transition between a close-knit urban area and a less compact area, they are situated between a one-story house and a five-story building. Most windows are oriented front and rear, mirroring themselves, thus supporting symmetrical harmony and an intimate environment independent from the surroundings.
The dialogue between the two volumes is mediated by an interior garden that represents the green roof on top of the garages, a meeting place for the Meteor 19 community that defines the spatial concept. There are six apartments, three in each volume, connected by a common semi-basement containing the parking and having direct accesses to the staircases. The upper-level apartments are paired, being differentiated through volumes covered by wooden slats.
They withdraw from both sides, thereby creating two terraces, and also being compliant to the urban regulations, they have a slight accenting cantilever in the front and rear side. The story of these housing buildings began in the middle of the real estate crisis, which severely affected Cluj as well, and continued by being integrally purchased by a software company which, after consulting the architects, transformed them into a very lively and active office environment.
Milestone: 2009.
Surfaces
Years
Budget














